Skip To Content

254 County Road 519

Kingwood Twp., NJ 08559
  • $480,000
  • STATUS: Active Under Contract
  • ON SITE: 134 Days
  • MLS #: 3994950
Under Contract
UPDATED: 37 min ago
$480,000
  • 2
    BEDS
  • 2.1
    ACRES
  • 1
    BATHS
  • 1
    1/2 BATHS
Type:
Single-Family Home
Built:
1956
County:

School Information

Elementary School:
Middle School:
High School:

Description

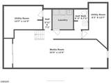
New Septic System & Half Bath in Progress! Charming, updated mid-century stone ranch on a deep 2+ acre lot in Hunterdon County's historic Kingwood Township. Less than 10 miles from the Delaware River towns of New Hope, Lambertville, Stockton and Frenchtown. This very well maintained home offers 2 bedrooms, a full remodeled bath with tub/shower, a spacious kitchen with ample storage opening out to a very large patio with a natural stone grill and a wood paneled living room with dining alcove - all with refinished oak wood flooring. A finished full basement with a large media/office room, new half bath and laundry room all with luxury vinyl plank (LVP) flooring and 2 utility rooms. Plus, a brand-new roof, freshly painted walls and trim, newer interior doors, and replacement windows throughout. Two outbuildings: workshop with storage area and a garden tractor shed.

Monthly Payment Calculator



Garden State MLS logo © 2026 Garden State Multiple Listing Service, LLC. All rights reserved. IDX information is provided exclusively for consumers' personal, non-commercial use and may not be used for any purpose other than to identify prospective properties consumers may be interested in purchasing. Information is deemed reliable but is not guaranteed accurate by the MLS or Christie's International Real Estate Group. Notice: The dissemination of listings on this website does not constitute the consent required by N.J.A.C. 11:5.6.1 (n) for the advertisement of listings exclusively for sale by another broker. Any such consent must be obtained in writing from the listing broker.The data relating to real estate for sale or lease on this web site comes in part from GSMLS. Real estate listings held by brokerage firms other than Christie's International Real Estate Group are marked with the GSMLS logo or an abbreviated logo and detailed information about them includes the name of the listing broker. Data last updated 2026-03-12T18:48:57.92.
www.srrealestategroup.com/homes/169312012
Print Image

254 County Road 519 Kingwood Twp., NJ 08559

  • Price: $480,000
  • Status: Active Under Contract
  • On Site: 134 Days
  • Updated: 37 min ago
  • MLS #: 3994950
2
Beds
1
Baths
1
½ Baths
2.1
Acres
1956
Built
County:
Hunterdon
Area:
Kingwood Twp.
Elementary School:
Kingwood
Middle School:
Kingwood
High School:
Del.Valley
Property Description
New Septic System & Half Bath in Progress! Charming, updated mid-century stone ranch on a deep 2+ acre lot in Hunterdon County's historic Kingwood Township. Less than 10 miles from the Delaware River towns of New Hope, Lambertville, Stockton and Frenchtown. This very well maintained home offers 2 bedrooms, a full remodeled bath with tub/shower, a spacious kitchen with ample storage opening out to a very large patio with a natural stone grill and a wood paneled living room with dining alcove - all with refinished oak wood flooring. A finished full basement with a large media/office room, new half bath and laundry room all with luxury vinyl plank (LVP) flooring and 2 utility rooms. Plus, a brand-new roof, freshly painted walls and trim, newer interior doors, and replacement windows throughout. Two outbuildings: workshop with storage area and a garden tractor shed.
Exterior Features

Approximate Lot Size 2.10 AC Color Of Building Stone Exterior Description StoneVinyl Siding Exterior Features Open Porch(es)Outbuilding(s)PatioStorage ShedThermal Windows/DoorsWorkshop Garage Description Carport-Attached Lot Description Level LotOpen Lot Number Of Parking Spaces 5 Parking Driveway Description 2 Car WidthBlacktop Pool No Primary Style Ranch Roof Description Asphalt Shingle Style Ranch

Interior Features

Appliances Carbon Monoxide DetectorDishwasherDryerGenerator-HookupRange/Oven-ElectricRefrigeratorWasher Basement Yes Basement Description FinishedFull Basement Level Rooms Bath(s) OtherLaundry RoomMedia RoomUtility Room Bedroom1 Dimensions 14x11 Bedroom2 Dimensions 12x11 Cooling Window A/C(s) Dining Area Living/Dining Combo Exclusions (2) Exterior Sculptures; Garden Tractor; Storage Shed in Carport Flooring TileVinyl-LinoleumWood Heating 1 UnitBaseboard - Hotwater Interior Features CODetectShadesSmokeDetTubShowr Kitchen Area Separate Dining Area Kitchen Dimensions 19x12 Kitchen Level First Level1 Rooms 2 BedroomsBath MainKitchenLiving Room Living Room Dimensions 23x11 Living Room Level First Master Bedroom Description 1st Floor Number Of Fireplaces 0 Number Of Rooms 4 Other Room1 Media Room Other Room1 Dimensions 33x13 Other Room1 Level Basement Other Room2 Bathroom Other Room2 Dimensions 7x6 Other Room2 Level Basement Other Room3 Laundry Room Other Room3 Dimensions 7x7 Other Room3 Level Basement Other Room4 Utility Room Other Room4 Dimensions 14x11 Other Room4 Level Basement

Property Features

Assessment Total 227800 Block Identifier 36 Building Assessment 86800 Community Living No Easement Unknown Farm Assessment No Fha Age Restricted No Fuel Type Oil Tank Above Ground - Inside Handicap Modified No Home Warranty No In Law Suite No Land Assessment 141000 Renovated Year 2015 Services Cable TVGarbage Extra Charge Sewer Septic Sub Property Type Single Family Tax Amount 5742 Tax Rate Amount 2.521 Tax Year 2024 Utilities Electric Water Well Water Heater From Furnace Year Built Description ApproximateRenovated

Listing information © 2026 Garden State Multiple Listing Service,LLC.
Listing provided courtesy of COLDWELL BANKER REALTY: 908-872-3825.


Garden State MLS logo © 2026 Garden State Multiple Listing Service, LLC. All rights reserved. IDX information is provided exclusively for consumers' personal, non-commercial use and may not be used for any purpose other than to identify prospective properties consumers may be interested in purchasing. Information is deemed reliable but is not guaranteed accurate by the MLS or Christie's International Real Estate Group. Notice: The dissemination of listings on this website does not constitute the consent required by N.J.A.C. 11:5.6.1 (n) for the advertisement of listings exclusively for sale by another broker. Any such consent must be obtained in writing from the listing broker.The data relating to real estate for sale or lease on this web site comes in part from GSMLS. Real estate listings held by brokerage firms other than Christie's International Real Estate Group are marked with the GSMLS logo or an abbreviated logo and detailed information about them includes the name of the listing broker. Data last updated 2026-03-12T18:48:57.92.
 
https://bt-photos.global.ssl.fastly.net/gsmls/orig_boomver_1_3994950-2.jpg https://bt-photos.global.ssl.fastly.net/gsmls/orig_boomver_1_3994950-2.jpg https://bt-photos.global.ssl.fastly.net/gsmls/orig_boomver_1_3994950-2.jpg
Logo
Christie's International Real Estate Group
47 Maple Street
Summit NJ, 07901